КЛАПАНЫ ОТСЕЧНЫЕ СЕРИИ КО ПО ТУ 3742-11-05749211-2014 (Ранее У 96563 по ТУ 51-0303-13-98 и УФ 96219 по ТУ 51-0303-11-96)

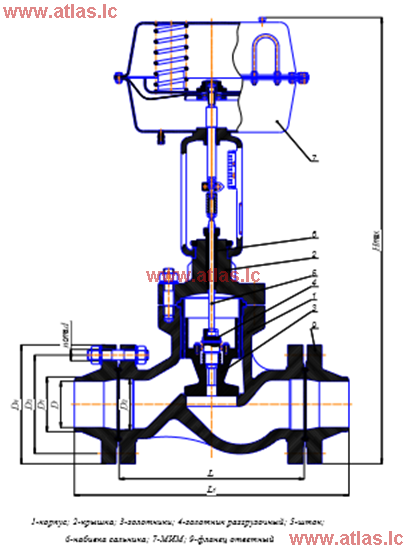
Клапаны отсечные на номинальные диаметры (DN) 50, 80, 100, 150, 200 и на номинальные давления (РN) 16,0 МПа предназначены для установки на трубопроводах с целью отсекания потока среды, изготавливаемые с пневматическими мембранными пружинными исполнительными механизмами (МИМ) или с электрическими исполнительными механизмами (ЭИМ).
Manufacturer: OAO Volgogradneftemash
Call for pricing

Клапаны изготавливаются в климатических исполнениях У1, ХЛ1, Т1 по ГОСТ 15150.

При заказе клапана указывается:

  • - обозначение изделия по конструкторскому документу,
  • - условное обозначение (табличная фигура),
  • - класс герметичности затвора;
  • - вид действия (нормально открытый НО или нормально закрытый НЗ),
  • - проход номинальный (DN),
  • - среда (жидкая Ж или газообразная Г),
  • - необходимость ответных фланцев (Ф),
  • - давление номинальное (PN),
  • - исполнение с МИМ или ЭИМ.

Пример записи (при заказе и в другой документации) клапана отсечного КО 96219 DN50, с корпусом из стали 25Л, с классом герметичности А, вида действия НЗ, на жидкую среду, без ответных фланцев, с МИМ (с верхним ручным дублером и сигнализатором крайних положений электрическим): «Клапан КО 96219, табл./фиг. 22с79п1, А, НЗ, DN 50-Ж PN 40, МИМ 250-212-153-212 ТУ 51-0303-5-95, ТУ 3742-11-05749211-2014».

Пример записи клапана отсечного КО 96219 DN 150, с корпусом из стали 25Л, вида действия НЗ, с МИМ без дополнительных блоков, на жидкую среду, без ответных фланцев: «Клапан КО 96219-150, табл./фиг. 22с38нж, НЗ, DN 150-Ж, МИМ 500-212-185-011 по ТУ 510303-5-95 , ТУ 3742-11-05749211-2014»

Допускается применять клапаны на PN 1,6; 2,5 МПа.

1.Технические требования

1.1 Основные технические данные и характеристики клапанов соответствуют значениям, указанным в таблицах 1, 2. При поставке на экспорт, в том числе в страны с тропическим климатом, дополнительные требования по ГОСТ 26304.

1.2 Рабочие давления по ГОСТ 356.

1.3 Направление подачи рабочей среды – на золотник.

1.4 Присоединительные фланцы с уплотнительными поверхностями и размерами по ГОСТ Р 54432-2011, исполнение F (3) для РN до 4,0 МПа, исполнение J (7) для РN 10,0 МПа, ответные фланцы по ГОСТ Р 54432-2011.

1.5 Управление клапанами осуществляется исполнительными механизмами (ИМ), указанными в таблице 3. Допускается комплектовать клапаны другими ИМ с аналогичными характеристиками, не ухудшающими качество продукции, в том числе иностранного производства. По желанию заказчика, или в случае, если температура окружающего воздуха не ниже минус 30:С, клапаны могут быть укомплектованы пневматическими приводами исполнения С4 ГОСТ 12997. Клапаны снабжены местным указателем положения запорного устройства.

1.6 Рабочее положение клапанов DN 50, 80, 100, 150 – любое, рекомендуемое – вертикальное; клапанов DN 200 – вертикальное, ИМ – вверх.

1.7 Нормы герметичности затворов клапанов по ГОСТ 9544. Класс герметичности и пробное вещество указывается при заказе.

1.8 Клапаны относятся к классу ремонтируемых восстанавлиемых изделий.

Показатели надежности следующие:

  • - полный средний срок службы, не менее – 30 лет,
  • - полный средний ресурс, не менее – 10 000 циклов,
  • - средняя наработка на отказ – 3 000 циклов.

1.9 Перечень возможных состояний, которые не являются отказом:

  • - нарушение герметичности в затворе, устранимое притиркой уплотнительной поверхности или подрезкой уплотнительного кольца,
  • - протечка сальникового уплотнения, устранимая заменой набивки или дополнительной затяжкой,
  • - нарушение герметичности прокладочного соединения, устранимое заменой прокладки или дополнительной затяжкой.

Критерии предельных состояний клапанов:

  • - полная потеря герметичности в затворе,
  • - заклинивание подвижных частей клапана,
  • - разрушение элементов деталей.

При достижении клапаном предельного состояния его эксплуатация должна быть прекращена, произведена оценка его состояния и принято решение о ремонте.

1.10 Маркировка и отличительная окраска клапана - по ГОСТ 4666. Маркировка на фирменной табличке содержит:

  • - товарный знак или наименование предприятия-изготовителя,
  • - знак соответствия по ГОСТ Р 50460,
  • - обозначение изделия по конструкторскому документу,
  • - условное обозначение (табличная фигура),
  • - обозначение схемы работы (НО или НЗ),
  • - максимальная температура рабочей среды,
  • - порядковый номер,
  • - год изготовления.

1.11 Масса клапанов с МИМ (без дополнительных блоков) и ЭИМ указана в таблице 5.

2 Указания по эксплуатации

2.1 Указания о подготовке к эксплуатации, о вводе в действие, неисправностях, повреждениях и способах их устранения, осмотрах и ремонтах приведены в руководстве по эксплуатации. 3апрещается эксплуатация клапанов при отсутствии эксплуатационной документации.

2.2 Температура окружающей среды в соответствии с ГОСТ 15150:

  • - для исполнения У1 от минус 40С до плюс 50С (сталь 25Л для изготовления корпуса, крышки); от минус 50С до плюс 50С (сталь 12Х18Н9ТЛ для изготовления корпуса, крышки);
  • - для исполнения ХЛ1 от минус 60С до плюс 45С (сталь 12Х18Н9ТЛ и 20ГМЛ для изготовления корпуса, крышки);
  • - для исполнения Т1 от минус 10С до плюс 50С;

3 Гарантии изготовителя

3.1 Предприятие-изготовитель гарантирует качество изготовления и соответствие клапанов требованиям настоящих ТУ при соблюдении потребителем условий эксплуатации, транспортирования и хранения, установленных настоящими ТУ.

3.2 Гарантийный срок эксплуатации клапана 24 месяца со дня ввода, но не более 36 месяцев со дня отгрузки с предприятия-изготовителя.

3.3 Гарантийная наработка не менее 2700 циклов.

3.4 Истечение гарантийного срока эксплуатации, либо завершение эксплуатации в пределах гарантийной наработки означает прекращение всех гарантийных обязательств изготовителя.

4 Использование по назначению

4.1 Меры безопасности

К эксплуатации и обслуживанию клапана допускается персонал, обслуживающий объект, изучивший руководство по эксплуатации клапана, правила техники безопасности, утвержденные руководителем предприятия, эксплуатирующего клапан и имеющий навыки работы с ним. Источником опасности при испытаниях, монтаже и эксплуатации является находящаяся под давлением рабочая среда. Безопасность эксплуатации клапана должна обеспечиваться прочностью, плотностью и герметичностью деталей, находящихся под давлением, которые должны выдержать статическое давление, указанное в чертежах, и надежностью крепления деталей, находящихся под давлением.

4.2 Эксплуатационные ограничения

Срок службы клапана и безотказность действия обеспечиваются при соблюдении требований настоящего РЭ. При разборке и сборке клапана должны быть приняты меры по обеспечению чистоты рабочего места, независимо от того, снимается клапан с трубопровода или нет. Возможность загрязнения и попадания посторонних предметов во внутренние полости клапана при разборке и сборке должна быть исключена.

4.3 Подготовка к использованию

4.3.1 Транспортировка клапана к месту монтажа должна производиться в упаковке предприятия-изготовителя; проходные отверстия корпуса должны быть закрыты заглушками.

Перед монтажом клапана проверить:

  • - состояние упаковки;
  • - комплектность;
  • - наличие эксплуатационной документации;
  • - наличие заглушек на магистральных фланцах;
  • - сохранность пломбирования;
  • - визуально состояние внутренних полостей клапана и трубопровода, доступных для визуального осмотра (при обнаружении в клапане или трубопроводе инородных тел, необходимо их удалить или произвести промывку клапана и трубопровода);
  • - состояние крепежных соединений.

4.3.2 При монтаже клапана в агрегаты и системы необходимо руководствоваться общими техническими условиями на изготовление, приемку и монтаж агрегатов и систем, и указаниями технических условий, разработанных для каждого агрегата. При установке клапана на трубопровод необходимо, чтобы фланцы трубопровода не имели перекосов, а отверстия под крепежные детали совпадали с отверстиями во фланцах корпуса в пределах допусков. Для подвески, при монтаже или других работах следует использовать проушины на крышке клапана. Установку клапана на трубопроводе следует производить так, чтобы направление движения среды совпадало с направлением стрелки на корпусе клапана. Рекомендуется устанавливать клапан на трубопровод, имеющий прямые участки до клапана длиной не менее 15DN и после клапана длиной не менее 20DN от магистральных патрубков клапана. Для удобства обслуживания должен быть обеспечен доступ к клапану.

При монтаже запрещается:

  • - применять ключи с удлиненными рукоятками;
  • - устранять перекосы за счет натяжения (деформации) фланцев клапана.

Перед монтажом клапан подвергают осмотру и испытаниям на герметичность прокладочных соединений и сальникового уплотнения и на работоспособность.

4.3.3 Испытание на герметичность прокладочных соединений и сальникового уплотнения проводится подачей воды или воздуха (в зависимости от рабочей среды – жидкой или газообразной) давлением PN в один из патрубков клапана, другой патрубок должен быть закрыт, затвор - открыт. Пропуск воды или воздуха через прокладочные соединения и в сальнике не допускается. Контроль – по технологии, принятой на объекте.

4.4 Испытание на работоспособность.

Проверку плавности работы клапана производить наработкой 3 циклов «открыто-закрыто» от исполнительного механизма путем изменения управляющего давления или управляющего сигнала без подачи среды в клапан. Клапаны с ручным дублером дополнительно испытать наработкой 2 циклов «открытозакрыто» от ручного дублера. При испытании все движущиеся детали клапанов должны перемещаться свободно без заеданий.

Проверку времени срабатывания клапанов НО с МИМ (времени хода золотника от закрытого положения до полностью открытого) производить в следующей последовательности:

  • закрыть клапан от мембранно-исполнительного механизма, подать воду в обе полости корпуса, создав перепад давлений на клапане, указанный в таблице 2.
  • Сбросить давление из мембранной головки, произвести замер времени срабатывания клапана.

Испытание повторить 3 раза. Время срабатывания клапанов не должно превышать значений, указанных в таблице 2. Клапаны НО с МИМ, для которых перепад ∆Р (указанный в таблице 2) меньше 4 МПа, дополнительно испытать, создав перепад на золотнике 4 МПа. Клапан должен полностью открыться. При этом время срабатывания не регламентируется.

Проверку времени срабатывания клапанов НЗ с МИМ (времени хода золотника от полностью открытого положения до закрытого) производить в следующей последовательности:

  • открыть клапан мембранно-исполнительным механизмом, подать воду давлением PN во входной патрубок при заглушенном выходном патрубке.
  • Сбросить давление из полости мембранно-исполнительного механизма и закрыть клапан, производя замер времени срабатывания.

Испытание повторить 5 раз. Время срабатывания клапанов не должно превышать значений, указанных в таблице 2. Перед пуском агрегата (системы) непосредственно после монтажа клапан должен быть открыт, и должна быть произведена тщательная промывка, продувка и просушка системы трубопроводов.

4.5 Использование изделия

Клапан должен использоваться строго по назначению в соответствии с указаниями технической документации. Перечень возможных неисправностей в процессе использования клапана по назначению и рекомендации по действиям при их возникновении приведены в таблице 6.

4.6 Общие указания

Техническое обслуживание клапана – это комплекс организационных и технических мероприятий по обслуживанию и ремонту клапана с целью поддержания его в работоспособном состоянии и предотвращении выхода из строя. Осмотры и проверки проводит персонал, обслуживающий систему или агрегат.

4.7 Меры безопасности

Для обеспечения безопасной работы категорически запрещается:

  • - снимать клапан с трубопровода при наличии в нем рабочей среды;
  • - производить работы по устранению дефектов при наличии давления рабочей среды в трубопроводах.

4.8 Порядок технического обслуживания

Во время эксплуатации следует производить периодические осмотры (регламентные работы) в сроки, установленные графиком в зависимости от режима работы системы (агрегата), но не реже одного раза в шесть месяцев. При осмотрах необходимо проверить: - общее состояние клапана; - состояние крепежных изделий; - герметичность мест соединений относительно внешней среды; - работоспособность и способность клапана выполнять свои функции.

 

ссылка: Полное описание основных технических данных и характеристик КЛАПАНЫ   ОТСЕЧНЫЕ  СЕРИИ    КО   ПО  ТУ 3742-11-05749211-2014 (Ранее У 96563 по ТУ 51-0303-13-98 и УФ 96219 по ТУ 51-0303-11-96)